площадью 175,00 м2, по цене 10800000 по адресу Зверинская - 42 литера А

Цена 10 800 000 р.
Район Петроградский
Адрес Зверинская, 42 литера А
Площадь помещения 175 м2
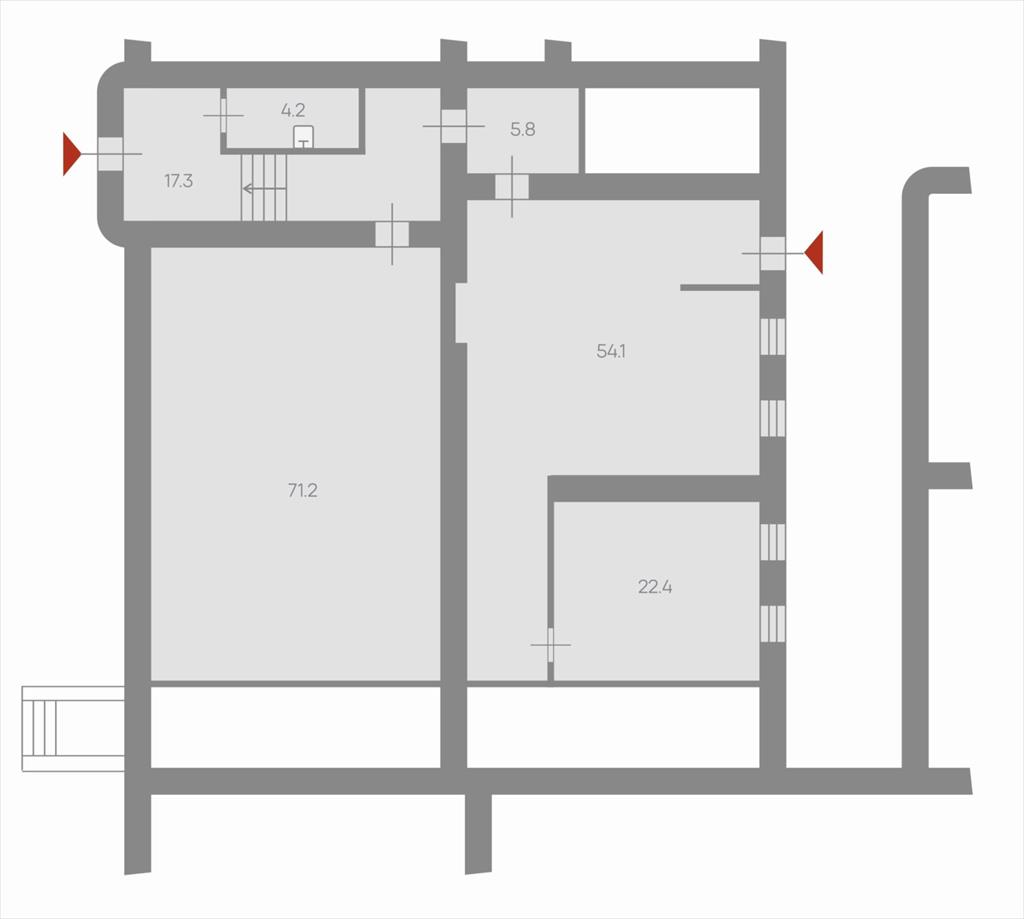
Код лота: 62C46C9-4001-7271-1. Реализуется на торгах. Продается нежилое помещение свободного назначения в Петроградском районе Санкт-Петербурга. Помещение расположено в шестиэтажном здании 1910 года постройки. Окружение объекта составляет преимущественно жилая застройка. В ближайшем окружении располагаются школы, детские сады, магазины, кафе, рестораны, аптеки. Плотность застройки высокая. Неорганизованная парковка на ближайших улицах и внутриквартальных проездах (платная) . Интенсивность транспортных и пешеходных потоков непосредственно возле объекта средняя. Транспортная доступность отличная. Ближайшая станция метро "Спортивная" расположена на расстоянии 820 м. Помещение находится в удовлетворительном состоянии. В настоящее время помещение не используется. Визуально выявлены перепланировки: оконные проемы заложены. Площадь помещения: 175 кв. м Этаж: цоколь Высота: 2,60 м (заглубление -1,12 м) Окна: есть Вход: 2 отдельных со двора Коммуникации: Визуально выявлены элементы электроснабжения, водоснабжения, отопления, канализации. Требуется заключение договоров с балансодержателями сетей! В помещении проходят транзитные трубы. Возможное использование: офис Помещение реализуется с торгов по приватизации по поручению Комитета по управлению городским имуществом Правительства Санкт-Петербурга. Торги проводятся на электронной площадке Lot-Online. Просмотр помещения осуществляется в период приема заявок на участие в торгах и только в рабочее время. Заявку на организацию осмотра необходимо подавать заранее. https: //catalog. lot-online. ru/index. php?dispatch=products. view&product_id=1153815
Объявление № 23244277
Дата подачи:
2 октября 2025 г. 16:24
Дата обновления:
6 октября 2025 г. 17:16
Просмотров 6 Хотите продать быстрее?

Продавец
Смирнова Вера
Показать номер телефона
Пожаловаться
Комментарии:
Добавить